5 locali in vendita

Lerici, Via Gozzano 1^ Traversa - San Terenzo
€ 325.000
5 locali 5 locali
112 Mq 112 Mq
2 bagni 2 bagni

5 locali in vendita

Lerici, Via Gozzano 1^ Traversa - San Terenzo

Descrizione annuncio

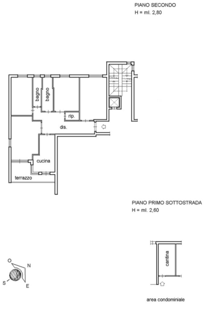
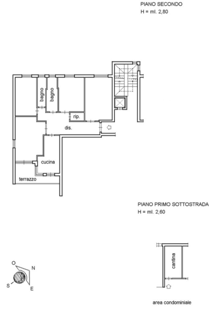
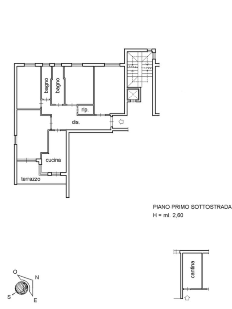
San Terenzo – In posizione comoda, vicina al mare e ben servita, proponiamo ampio appartamento di 5 vani con terrazzo abitabile, doppi servizi, posto auto coperto di proprietà e cantina.

L’ingresso si apre su un disimpegno che conduce alla zona giorno, composta da cucina con accesso al terrazzo e da un soggiorno adiacente, con la possibilità di creare un unico ambiente open space. Anche il soggiorno dispone di accesso diretto al terrazzo, perfetto per momenti di relax all’aperto.

La zona notte, ben separata, offre tre camere da letto spaziose, doppi servizi e un comodo ripostiglio.

A completare la proprietà, un posto auto coperto nel garage condominiale, collegato da ascensore direttamente al piano dell’abitazione, una cantina e un curato giardino condominiale.

Mostra tutto

Nelle vicinanze

Trasporto pubblico Trasporto pubblico
Bagnara
Bagnara
10 m
San Terenzo ( La Marinella )
San Terenzo ( La Marinella )
360 m
Trasporto pubblico
2,0 Km
Farmacia Farmacia
Farmacia Ghigliazza
680 m
Farmacia
1,9 Km
Ospedali Ospedali
Ospedali
1,2 Km
Supermercati Supermercati
Supermercati
500 m
supermarket COOP
510 m
Eurospin
540 m
Conad
2,3 Km
Negozi Negozi
Panificio Eredi Rizzoli
510 m
Negozi
2,0 Km
Margherita Conad
2,1 Km
Bar Bar
Bar
490 m
Il Borgo
570 m
Bar il Pontile
2,0 Km
Bar Silvia
2,9 Km
Ristoranti Ristoranti
Ristoranti
510 m
La Palmira
530 m
Fuoco E Fiamme Ristorante
560 m
San Terenzo La Griglia
560 m
Alika
570 m
Mostra tutto

Caratteristiche

Rif.:
61127653
Piano:
2 di 4 con ascensore (Piano ammezzato)
Posti auto:
1
Terrazzi:
1
Camere da letto:
3
Arredamento:
Assente
Mostra tutto
Prezzo Prezzo
€ 325.000
Rata mutuo Rata mutuo
€ 1.531 / mese
Proponi il tuo prezzoProponi il tuo prezzo

Classe Energetica

F
F
F
F
F
F
F
F
F
EP globale non rinnovabile:
101.06 kW h/m² anno
EP invernale del fabbricato:
EP estiva del fabbricato:
Anno di costruzione:
1900
Riscaldamento:
Autonomo
Tipo impianto:
A radiatori
Tipo alimentazione:
Metano

Ti interessa visionare l'immobile?

Fissa un appuntamento  Fissa un appuntamento

Richiedi informazioni

Clicca su Leggi per aprire l'informativa
* Questi campi sono obbligatori

Calcola il tuo mutuo

Semplice e senza impegno
Anticipo

( % )
Mutuo

( % )

pochi semplici passi

inserisci i tuoi dati
Questionario completato
Grazie per aver richiesto un appuntamento senza impegno con un nostro Consulente del Credito e Assicurativo.

Hai inserito correttamente tutti i dati necessari e a breve riceverai una e-mail con un link da convalidare per inviare i tuoi dati.
Affiliato
Studio Lerici Srl
Via Pisacane, 1 19032 Lerici (SP)
Via Pisacane, 1 19032 Lerici (SP)
Zona: Lerici-San Terenzo
Mostra su mappa
Orari: Dal Lunedì al Venerdì 09:00 alle 12:30 e dalle 15:30 alle 19:30. Sabato dalle 09:00 alle 12:30 e dalle 15:30 alle 18:30
Affiliato
Studio Lerici Srl
Via Pisacane, 1 19032 Lerici (SP)

2026 Tecnocasa Franchising S.p.A. - P. IVA 08365160152 - Via Monte Bianco 60/A 20089 Rozzano (MI). Ogni agenzia ha un proprio titolare ed è autonoma. Privacy policy | Policy utilizzo | Cookie policy