Quadrilocale in vendita

Lerici, Viale della Vittoria - San Terenzo
€ 325.000
4 locali 4 locali
68 Mq 68 Mq
1 bagno 1 bagno

Quadrilocale in vendita

Lerici, Viale della Vittoria - San Terenzo

Descrizione annuncio

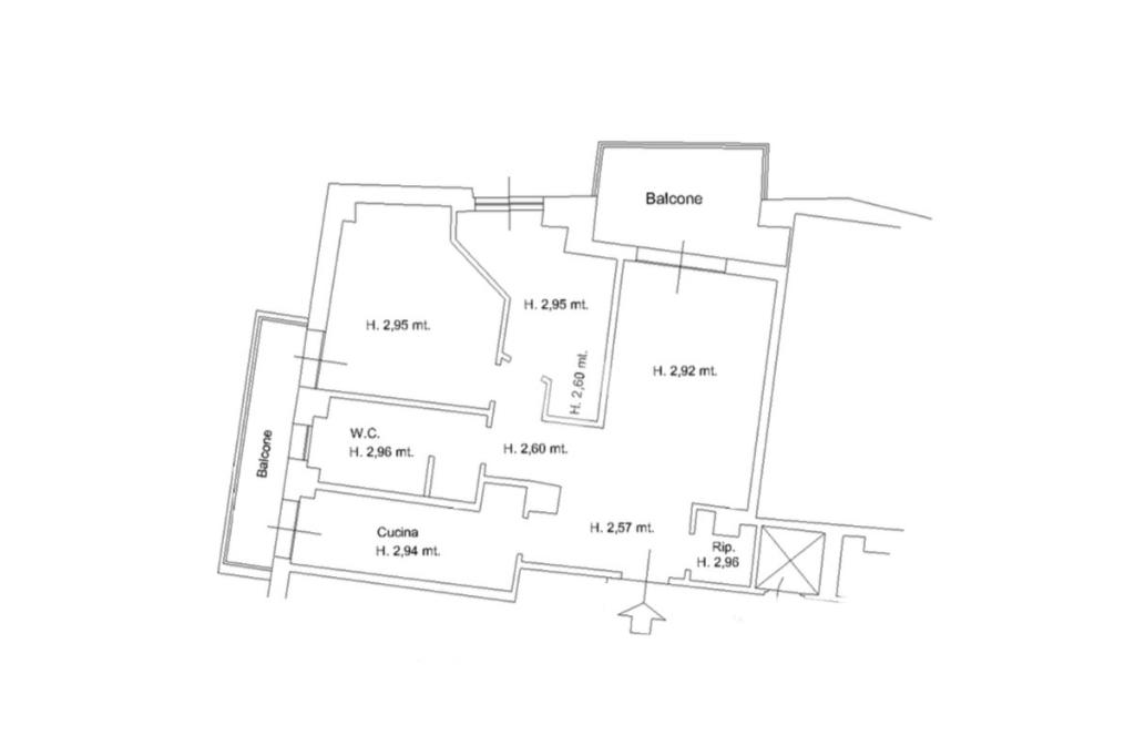
San Terenzo – A soli 100 metri dal mare proponiamo in vendita un ampio appartamento di 4 locali con terrazzo abitabile, balcone e posto auto di proprietà.

L’ingresso conduce nella zona giorno, composta da un luminoso soggiorno che si apre sul terrazzo abitabile, perfetto per pranzi e momenti di relax all’aperto, e da una cucina separata con accesso diretto al balcone.

La zona notte ospita una spaziosa camera matrimoniale, anch’essa collegata al balcone, una seconda camera, e un bagno finestrato comodo e funzionale.

Un pratico ripostiglio e il posto auto di proprietà all'interno del condominio completano la proprietà.

Il riscaldamento è centralizzato con termovalvole, una soluzione che consente di mantenere spese condominiali contenute.

Mostra tutto

Nelle vicinanze

Trasporto pubblico Trasporto pubblico
San Terenzo
San Terenzo
40 m
Trasporto pubblico
70 m
Trasporto pubblico
1,4 Km
Farmacia Farmacia
Farmacia Ghigliazza
130 m
Farmacia
1,3 Km
Ospedali Ospedali
Ospedali
1,5 Km
Supermercati Supermercati
supermarket COOP
80 m
Supermercati
140 m
Eurospin
1,1 Km
Conad
1,7 Km
Negozi Negozi
Panificio Eredi Rizzoli
130 m
Negozi
1,5 Km
Margherita Conad
1,6 Km
Marchi Anna
2,5 Km
Bar Bar
Il Borgo
30 m
Bar
50 m
Bar il Pontile
1,4 Km
Bar Silvia
2,3 Km
Ristoranti Ristoranti
Ristoranti
70 m
La Palmira
90 m
Fuoco E Fiamme Ristorante
150 m
San Terenzo La Griglia
150 m
Ristorante Trieste
150 m
Mostra tutto

Caratteristiche

Rif.:
61110377
Piano:
Rialzato di 4 con ascensore
Totale piani:
4
Posti auto:
1
Balconi:
1
Terrazzi:
1
Mostra tutto
Prezzo Prezzo
€ 325.000
Rata mutuo Rata mutuo
€ 1.531 / mese
Spese annue Spese annue
€ 700
Proponi il tuo prezzoProponi il tuo prezzo

Classe Energetica

G
G
G
G
G
G
G
G
G
EP globale non rinnovabile:
181.01 kW h/m² anno
EP invernale del fabbricato:
EP estiva del fabbricato:
Anno di costruzione:
1970
Riscaldamento:
Centralizzato
Tipo impianto:
A radiatori
Tipo alimentazione:
Metano

Ti interessa visionare l'immobile?

Fissa un appuntamento  Fissa un appuntamento

Richiedi informazioni

Clicca su Leggi per aprire l'informativa
* Questi campi sono obbligatori

Calcola il tuo mutuo

Semplice e senza impegno
Anticipo

( % )
Mutuo

( % )

pochi semplici passi

inserisci i tuoi dati
Questionario completato
Grazie per aver richiesto un appuntamento senza impegno con un nostro Consulente del Credito e Assicurativo.

Hai inserito correttamente tutti i dati necessari e a breve riceverai una e-mail con un link da convalidare per inviare i tuoi dati.
Affiliato
Studio Lerici Srl
Via Pisacane, 1 19032 Lerici (SP)
Via Pisacane, 1 19032 Lerici (SP)
Zona: Lerici-San Terenzo
Mostra su mappa
Orari: Dal Lunedì al Venerdì 09:00 alle 12:30 e dalle 15:30 alle 19:30. Sabato dalle 09:00 alle 12:30 e dalle 15:30 alle 18:30
Affiliato
Studio Lerici Srl
Via Pisacane, 1 19032 Lerici (SP)

2026 Tecnocasa Franchising S.p.A. - P. IVA 08365160152 - Via Monte Bianco 60/A 20089 Rozzano (MI). Ogni agenzia ha un proprio titolare ed è autonoma. Privacy policy | Policy utilizzo | Cookie policy